List Price
777,000
Status
Sold
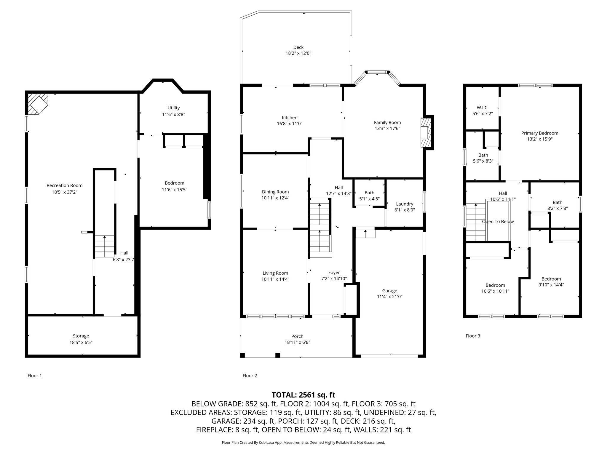
Bedrooms
3+1
Bathrooms
2
Property Type
Residential Freehold
Neighborhood
558 - Confederation Heights
Lot Size
35.70ft x 109ft
Taxes/Year
5,591.00/2025
Walk Score
32
Transit Score
31
Property Details
Private backyard oasis with an In Ground Pool and no rear neighbours! Welcome to this meticulously maintained detached home featuring a stunning in-ground pool and backing onto a peaceful park. This home offers the perfect blend of privacy, elegance, and family comfort. From the moment you arrive, you’ll be impressed by the great curb appeal — a landscaped front yard, concrete driveway, and an attached garage with direct access into the home. Inside, a spacious foyer and Brazilian cherry hardwood floors set the tone for quality craftsmanship and top materials throughout. The main floor offers a bright and functional layout with a spacious living area that flows into the dining area, as well as a separate cozy family room with gas fireplace at the back of the house, giving you the advantage of having 2 separate living areas on the main floor. The family room connects to the stylish kitchen, which boasts a large island with durable soapstone countertops, glass backsplash, and stainless steel appliances. Sliding doors lead to a large deck and private backyard oasis with an in-ground pool — perfect for summer days with family and friends. The added privacy in the backyard is a great plus! A stylish 2-piece bath and main floor laundry with granite counters complete this level. Upstairs, you’ll love the primary bedroom which features a walk-in closet, ensuite bath, and beautiful park views. Two additional bedrooms and another full bath offer plenty of space and comfort for the whole family. The fully finished basement provides plenty of additional living space as well as a 4th bedroom, making it ideal for guests, a home office or recreation space. Located in a quiet, family-friendly neighbourhood, this home is close to parks, schools, and major highways. Fully move-in ready with nothing to do but enjoy — don’t miss the chance to make this home yours!
